£375,000 Guide Price

2 bedroom Semi-Detached House for sale
Wyatt Road, Crayford


FULL DESCRIPTION

GUIDE PRICE £375,000 TO £385,000 - Located in a quiet residential area of Crayford, this well-maintained two-bedroom semi-detached home offers a practical layout, modern interiors, and convenient access to local amenities and transport links.

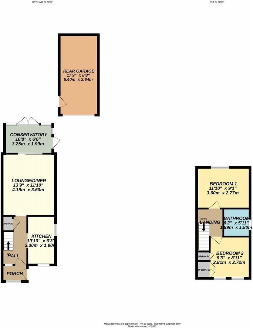
The property opens with a porch leading into a separate kitchen, finished with contemporary units. At the rear, a spacious lounge/diner provides a comfortable living area. It opens into a bright conservatory, offering additional space that can be used flexibly for dining, work or a playroom. Upstairs are two well-proportioned bedrooms and a modern family bathroom with a white suite and tiled walls. The home is in good condition throughout and has been well cared for by the current owners.

Outside, the home features a well-maintained private rear garden, laid with low-maintenance artificial lawn and a patio area. There is also a detached garage with a roller shutter for secure storage, and off-street parking for three cars on the private driveway.

Wyatt Road is well placed for excellent transport connections. Crayford Station (Zone 6) has direct services to London Bridge, Charing Cross, and Cannon Street. For additional options, nearby stations such as Barnehurst and Slade Green provide additional rail links, with Slade Green offering easy access to the Elizabeth Line via Abbey Wood. Drivers benefit from quick access to the A2, M25, and Dartford Crossing, while local bus routes link the area to Bexleyheath, Dartford, and Bluewater Shopping Centre. Crayford town centre, with supermarkets, cafés, and everyday essentials, is also close by.

Additional Information

Tenure: Freehold
Parking: Off-street parking and on-street with no permits
Heating: Gas Boiler
Electricity Supply: Mains
Water Supply: Mains
Drainage: Mains
Council: Bexley
Broadband: Standard, Superfast and Ultrafast broadband is available. Actual service availability at the property may be different. Visit the Ofcom website for further information.
Mobile Signal/Coverage: You are likely to have good coverage from most networks. Visit the Ofcom website for further information.

Disclaimer

These particulars should be regarded as a general guide only and therefore should not be relied upon as statements of fact. They do not form part of any contract or offer. All photographs, measurements and distances referred to are given as a guide only and therefore should not be relied upon for any purpose.

If a floorplan is shown, this will not be to scale, and the accuracy is not guaranteed. Main services and appliances have not been tested by the agents and no warranty is given by them as to working order or condition.
Reference to tenure, leases, service charge, ground rent, estate management charges, fixtures, fittings, condition, extensions, planning permission, building consents/regulations, building works, conversions, or any other statement contained in these particulars should not be relied upon and must be verified by a legal representative or solicitor before any contract is entered into. If clarification or further information is required, please contact us before making an appointment to view, especially if you are travelling some distance.

Img
Img
Img
Img
Img
Img
Img
Img
Img
Img
Img
Img
Img
Img
Img
Img
Img
Img

Nearest Schools

List of nearest schools to this property.

* Distances are straight line measurements.

2 Key Stage 2

Haberdashers' Aske's Crayford Academy - 0.4 miles


4 Key Stage 4

Haberdashers' Aske's Crayford Academy - 0.4 miles


5 Key Stage 5

Haberdashers' Aske's Crayford Academy - 0.4 miles

Nearest Public Transport

List of nearest public transport to this property.

* Distances are straight line measurements.

 Train Station

Slade Green Rail Station - 0.62 miles


 Airport

London City Airport - 6.39 miles


 Coach Station

Lower Belvedere: Coach Stop - 2.24 miles


 Ferry Port

Woolwich Arsenal Pier - 5.31 miles


 Stamp Duty Calculator

 Mortgage Calculator

 
THIS AREA
 
THIS PROPERTY IS MARKETED BY

To view or request more details:

Livermores
126 Crayford Road
Crayford
DA1 4ES

 01322 550777
 crayford@livermores.co.uk