£425,000

2 bedroom Semi-Detached Bungalow for sale
Heathview Avenue, Dartford


FULL DESCRIPTION

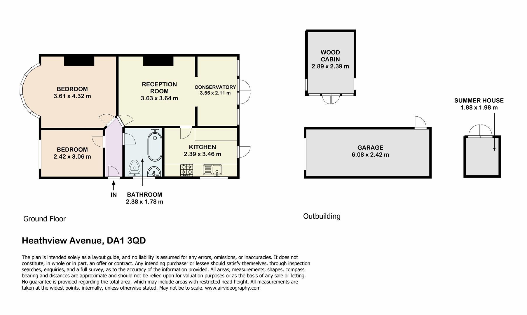
Set along a quiet and sought after residential avenue, this freehold two-bedroom semi-detached bungalow blends character with comfort. A welcoming hall leads to a generous reception room with an attractive fireplace and a wide opening to the conservatory, creating a smooth flow from everyday living to relaxed dining.

The kitchen is fitted with classic Shaker-style cabinetry, tiled splashbacks and integrated cooking appliances, with a door that leads straight to the garden. Both bedrooms are doubles and feature bay windows that draw in natural light. The main bedroom also enjoys a period fireplace surround. A neatly presented bathroom completes the layout, finished with neutral tiling and a timeless claw-foot bath with a shower over.

Outside, the rear garden is a standout feature. A terrace and pergola sit just off the house, stepping down to a generous lawn framed by mature planting that provides excellent privacy. Timber steps lead to a secluded, woodland-style lower garden where a substantial cabin offers superb versatility for hobbies or home working, as well as offering direct access onto woodland, while a separate summer house on the upper lawn provides additional storage. To the front, there is a driveway and a detached garage.

Heathview Avenue is just a short walk to Crayford shops, cafés and everyday amenities, with larger retail at Tower Retail Park and Bluewater within easy reach. Crayford rail station is also just a short walk away and provides regular services into London, local buses connect neighbouring towns, and motorists benefit from swift access to the A2, M25 and Dartford Crossing. Families will appreciate the choice of well-regarded schools and green spaces, including Hall Place and Gardens and Dartford Heath.

Additional Information

Parking: Driveway and garage
Heating: Gas Boiler
Electricity Supply: Mains
Water Supply: Mains
Drainage: Mains
Council: Bexley
Broadband: Standard, Superfast and Ultrafast broadband are available. Actual service availability at the property may be different. Visit the Ofcom website for further information.
Mobile Signal/Coverage: You are likely to have good coverage from most networks. Visit the Ofcom website for further information.
Internal Measurements: Please see the floor plan.

Disclaimer

These particulars should be regarded as a general guide only and therefore should not be relied upon as statements of fact. They do not form part of any contract or offer. All photographs, measurements and distances referred to are given as a guide only and therefore should not be relied upon for any purpose.

If a floorplan is shown, this will not be to scale, and the accuracy is not guaranteed. Main services and appliances have not been tested by the agents and no warranty is given by them as to working order or condition.
Reference to tenure, leases, service charge, ground rent, estate management charges, fixtures, fittings, condition, extensions, planning permission, building consents/regulations, building works, conversions, or any other statement contained in these particulars should not be relied upon and must be verified by a legal representative or solicitor before any contract is entered into. If clarification or further information is required, please contact us before making an appointment to view, especially if you are travelling some distance.

Img
Img
Img
Img
Img
Img
Img
Img
Img
Img
Img
Img
Img
Img
Img
Img
Img
Img
Img
Img
Img
Img
Img

Nearest Schools

List of nearest schools to this property.

* Distances are straight line measurements.

2 Key Stage 2

Wentworth Primary School - 0.49 miles


4 Key Stage 4

Haberdashers' Aske's Crayford Academy - 0.63 miles


5 Key Stage 5

Haberdashers' Aske's Crayford Academy - 0.63 miles

Nearest Public Transport

List of nearest public transport to this property.

* Distances are straight line measurements.

 Train Station

Crayford Rail Station - 0.12 miles


 Airport

London City Airport - 6.82 miles


 Coach Station

Dartford: Princes Avenue Coach Stop - 2.77 miles


 Ferry Port

Woolwich Arsenal Pier - 5.72 miles


 Stamp Duty Calculator

 Mortgage Calculator

 
THIS AREA
 
THIS PROPERTY IS MARKETED BY

To view or request more details:

Livermores
126 Crayford Road
Crayford
DA1 4ES

 01322 550777
 crayford@livermores.co.uk